Projekt w kształcie literki "L"

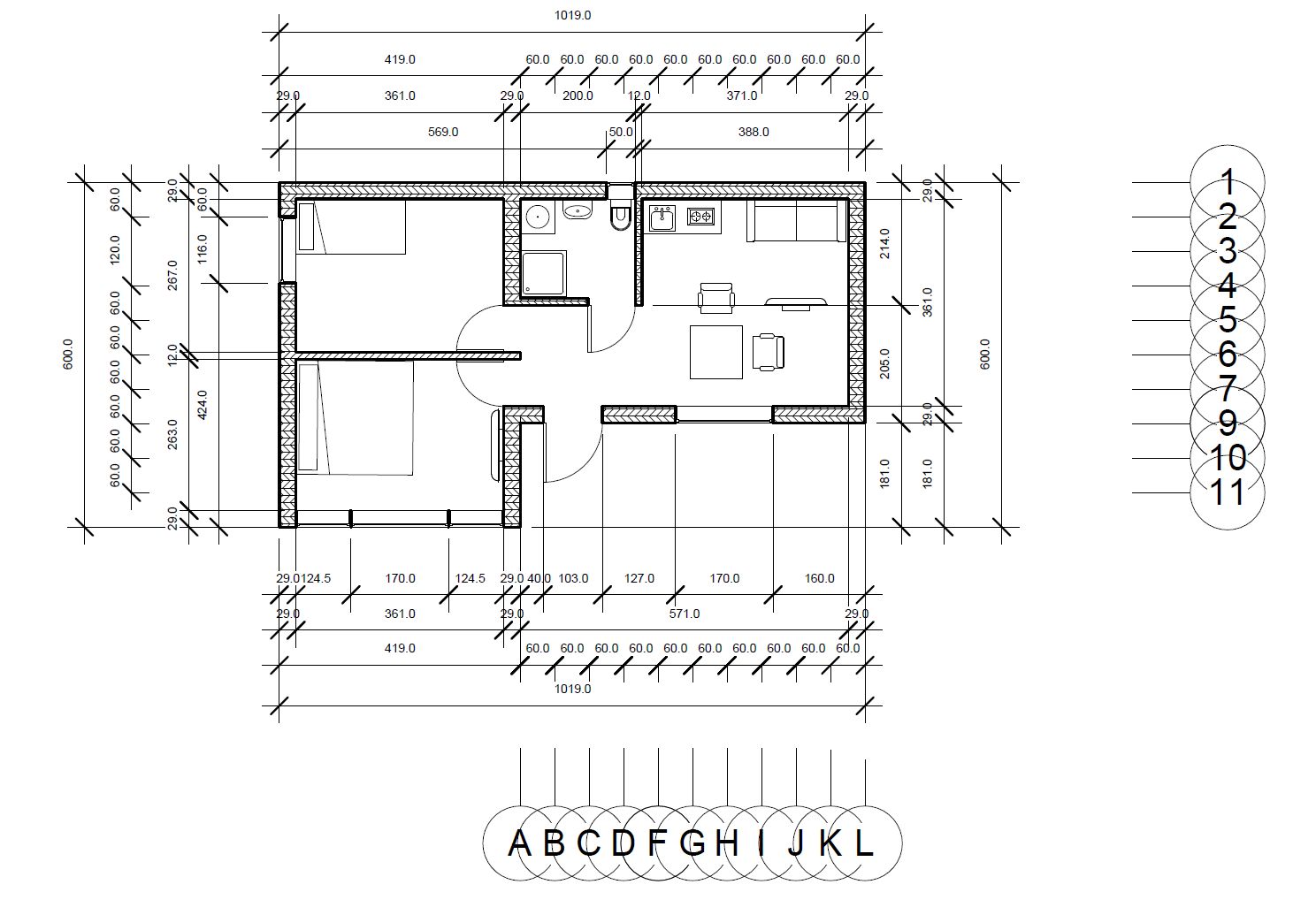
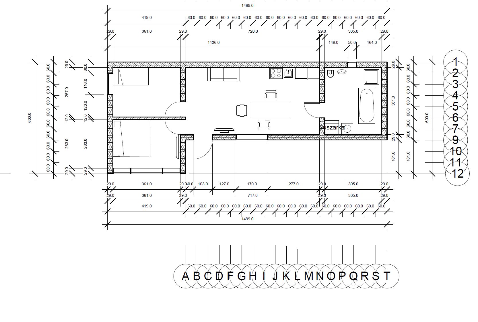
Nasz nowoczesny domek modułowy w kształcie litery „L” to kompaktowa. Projekt ten występuje w dwóch wersja  50 m² lub 70 m². Jego konstrukcja opiera się na modułach o szerokości 60 cm, co pozwala w prosty sposób wydłużać budynek — zarówno w segmentach bocznych, jak i w części środkowej. Każdy dodatkowy moduł to około 2,5 m² nowej przestrzeni, dzięki czemu układ można elastycznie dopasować do potrzeb użytkowników.

Jednym z kluczowych atutów domku jest przeszklona fasada, która otwiera wnętrze na otoczenie i zapewnia obfite naturalne światło. Dzięki temu przestrzeń staje się jasna, przyjazna i harmonijnie połączona z naturą.

Konstrukcja wykonana jest ze sklejki, a wszystkie elementy składają się niczym przestrzenne puzzle, co ułatwia montaż i zapewnia precyzyjne dopasowanie. Budynek jest ocieplany celulozą, co gwarantuje komfort termiczny przez cały rok i podkreśla ekologiczny charakter projektu.

Całość została obita blachą na rąbek, która tworzy piękną imitację drewna. Dzięki temu domek zyskuje elegancki, naturalny wygląd, a jednocześnie zachowuje trwałość i odporność na warunki atmosferyczne.

To połączenie modularności, estetyki i funkcjonalności sprawia, że domek w kształcie „L” jest wyjątkową propozycją dla osób ceniących nowoczesną architekturę, elastyczne rozwiązania i ponadczasowy design.

Metraż

50 lub 70 m²

Ilość pokoi

Dom może mieć 1,2 lub 3 pokoje sypialniane w zależności od wizji klienta

Czas montażu

Montaż konstrukcji od 2 do4 tygodni

Możliwość rozbuody

Projekt zakłada możliwość zwiększenia powierzchni o dowolną ilość w każdym segmencie modułów 2,5 m². Dom może być powiększony do np. 80 m² lub 100 m²